办公空间布局规划的实践
本案中,企业提出了多种功能空间的使用需求,有独立办公室、大型、小型会议室、接待、灵活的共享办公、多元化的休闲功能和对现有空间局部利旧,对空间规划设计经验提出了很大的挑战,如何满足企业对空间使用需求成为了首要任务。

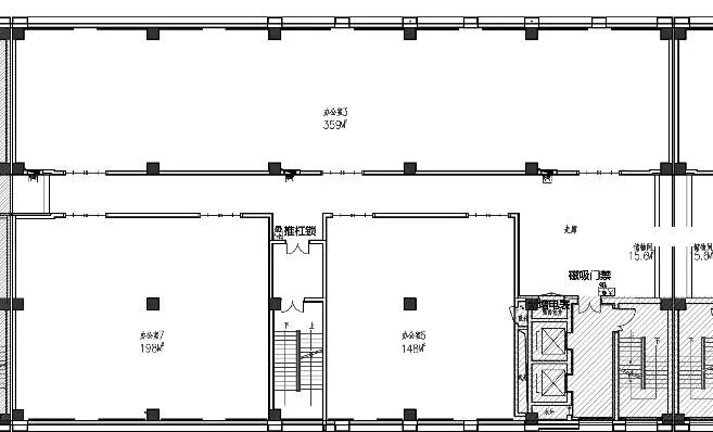
图1 原始现场图纸
上图空间的规划设计难点在于现场有一条近百米的通道,整体建筑空间被分割成了若干独立的封闭空间,要打破狭长、封闭的状态,以满足使用者所提出的灵活性、开放的设计需求。空间的中庭处有两个电梯厅,在规划中要考虑到来访人员及员工上下班的动线,并合理的设置接待台的位置。在中庭的中段位置有建筑原始的消防卷帘,在规划中也需要避让。

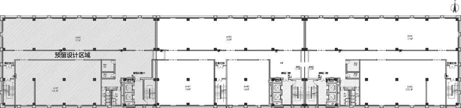
图2 平面布置图
(1)如何解决空间原有空间封闭的问题
通过前面的的分析,为了打破原有空间的封闭性,达到通透、开放的效果,在规划上大量拆除了走廊两侧的分户墙,同时在空间中设计了共享式的卡座,消除了单一的办公形式,让办公形式更加多元化,灵活性更强。如图3、4所示

图3 局部原始图

图4 局部办公区平面布置图
(2)如何解决走廊狭长的问题
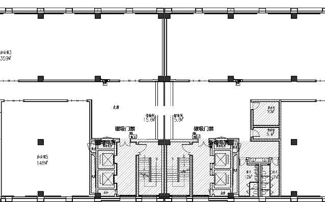
结合现场走廊空间狭长,层高低的问题,并考虑后期施工成本的因素。以保留中庭(前厅)现有装饰效果作为前提,在中庭走廊区域设计了一个洽谈室,附近区域增设了透明玻璃隔断的电话间。既满足了对后期施工成本的控制,重点在空间规划和视线感受上打破了走廊狭长的状态,解决了接待、面试、洽谈等功能上的需求。如图5、6所示

图5 局部原始图

图6 中庭平面布置图
(3)如何考虑写字楼辅助空间的问题
考虑写字楼现有辅助设施空间,在设计过程中满足使用方的需求,在靠近水源的附近区域规划设计了休闲区,解决日常办公生活用水(健身区配套的淋浴间,茶水、就餐区杯具等日用品清洗)的问题。如图7、8所示

图7 局部原始图

图8 休闲区平面布置图
(4)如何解决办公家具选择的问题
针对使用方提出的功能性需求,以及重点大量工作人员数量的要求,本项目的空间规划设计采用大量的直条型工位,即满足了人员数量,也使得整个办公空间布局在视觉上更加的通透,开放性十足,同时也结合了一部分组合沙发等家具种类形成多元化的共享区域,体现使用者对本次办公空间规划灵活性、开放性、多元化的需求。如图9、10所示

图9 空间鸟瞰效果

图10 空间鸟瞰效果
办公空间布局规划设计的成果不只是一项工作内容,还影响了人们的行为动线和工作习惯,对陈旧的办公形式做出了改变。在设计的过程中注重空间合理的划分,将人的心理需求和情感需求置于首位,并与写字楼的环境相结合。舒适合理的办公空间环境不仅有利于激发工作人员的工作情绪,实现高效办公效率,也能改善、提升人们对办公空间环境的追求,是未来新型办公空间设计的主流思想。
进行空间规划设计的同时也需要紧跟时代的发展步伐,考虑企业中、长远发展的规划,满足企业未来扩充发展的需求,让办公空间布局的人性化、合理性、灵活性设计在企业的发展过程中起到作用,进而推动企业、社会经济可持续发展。
本文作者:

李扬
HSD高级主案设计师
专注于公共空间设计13年,善于将时尚、艺术等元素结合,为律所、金融、科技、医疗等行业多家知名企业做过空间设计,得到客户的一致好评。

ABOUT HSD
华盈恒信是一家拥有国际视野的建筑设计工程公司,针对不同领域、不同类型项目提供专业完善的设计、施工支持,并采用“EPC”(设计+采购+施工)模式,实现设计与施工的无缝衔接。创立至今,我们为国内外一些最大,最具洞察力的公司创造了独特而时尚的办公环境。
